+1 614-898-7200
info@Trinity-Homes.com
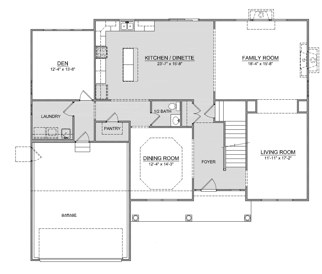
4 Beds
3044 Sq Ft
2.5 Bathrooms
2 Garages
Contact Information
3435 Stelzer Road, Suite 1SB
Columbus OH, 43219 USA
Phone: +1 614-898-7200
Subscribe to our news
Trinity Homes | All Rights Reserved | Prices Are Subject To Change Without Notice | Exterior Products and Detail May Vary
Privacy Policy | Accessibility Statement
Site By